140206 | Presentation to Hayle Town Council | Walker Developments
Submitted by Angarrack.info ... on Fri, 07/02/2014 - 18:20.
Presentation to Hayle Town Council 7.15pm Thursday 06 February 2014 - original 5 PDF pages
Expansion to West Cornwall Retail Park
Welcome

Expansion to West Cornwall Retail Park
Redevelopment of Hayle Rugby Club

Memorial Park Proposed Retail Site
![]() |
New pedestrian cycle and foot paths to the South and North, leading through to Guildford Road.
80 Staff car parking spaces. 528 Customer car parking spaces. |
Expansion to West Cornwall Retail Park
Possible Amalgamation with West Cornwall Retail Park

![]() |
New pedestrian cycle and foot paths to the South and North leading through to Guildford Road.
Potential combined entrance with West Cornwall Retail Park. Signalising of Loggans Moor roundabout. |
Expansion to West Cornwall Retail Park
Scheme Benefits
-
Extension to the West Cornwall Retail Park rather than creating a seperate retail site.
-
100,000 sq ft of retail space.
-
Complementary uses such as café and coffee shops.
-
528 car parking spaces for the retail scheme plus 80 staff parking spaces.
-
Creation of up to 450 jobs.
-
Reduction in existing congestion with more well located car parking and linked trips with the existing retail park.
-
Creation of new pedestrian foot and cycle paths to improve connectivity to the North and South.
-
Cycle parking to complement improved cycle paths.
-
No increased impact upon Flood Zones within the area.
-
Creation of Landscape Habitats.
-
Improvements to existing Highway network, including diverting access from the existing development area and signalising of Loggans Moor roundabout.
Expansion to West Cornwall Retail Park
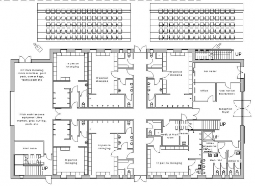
State of the Art Rugby Club
![]() |
![]() |
The New Clubhouse
![]() |
![]() |
-
12,000 sq ft State of the Art Rugby Club.
-
Two floodlit senior pitches plus junior/training pitches
-
Artificail Pitch - Enabling year round play.
-
120 car parking spaces.
-
Gymnasium and 6 changing rooms.
-
Two lounge bars and function rooms.
-
Significant Financial Support for the ongoing maintenance of HRFC.
-
New Community Facilities available to all Community Groups and other interested parties.
- Printer-friendly version
- Login or register to post comments
- Permalink
Contributions
- Angarrack Defibrillator Team (25)
- Angarrack Inn (336)
- Angarrack Methodist Chapel (3)
- Carol (15)
- Gail (1)
- GordonG (12)
- Hayle Development Group on Facebook (5)
- Hayle Harbour Authority (4)
- Hayle Town Council (5)
- louise (1)
- Lynne (111)
- Mal (1)
- MattBuckley66 (9)
- Neil (22)
- Neils Garden Care (9)
- Russell (21)
- Secretary - Christmas Lights (141)
- Steve (3)
- webmaster (5122)
Book page
tags in
Similar
- 160726 | Outline Planning Permission | Hayle Rugby Club | PA14/02920 | Outline application with some matters reserved
- 160726 | Section 106 | Hayle Rugby Club | PA14/02920 | Outline application with some matters reserved for proposed
- 160726 | Delegated report | Hayle Rugby Club | PA14/02920 | Outline application with some matters reserved for proposed
- 160727 | Approved with conditions | Hayle Rugby Club | PA14/02920 | Outline application with some matters reserved for proposed
- 160620 | Walker Developments website shows start date for the Hayle Rugby Club Retail Park as MAY 2017. This will be after the
Similar across site
- 160726 | Outline Planning Permission | Hayle Rugby Club | PA14/02920 | Outline application with some matters reserved
- 160726 | Section 106 | Hayle Rugby Club | PA14/02920 | Outline application with some matters reserved for proposed
- 160726 | Delegated report | Hayle Rugby Club | PA14/02920 | Outline application with some matters reserved for proposed
- 160727 | Approved with conditions | Hayle Rugby Club | PA14/02920 | Outline application with some matters reserved for proposed
- 160620 | Walker Developments website shows start date for the Hayle Rugby Club Retail Park as MAY 2017. This will be after the
Hayle and Angarrack news | Google
- Cornwall beach tragedy as surfer declared dead on the sand and 999 teams swarm - The Mirror
- Cornwall beach tragedy as surfer declared dead on the sand and 999 teams swarm - The Mirror
- Cornwall beach tragedy as surfer declared dead on the sand and 999 teams swarm - The Mirror
- Cornwall beach tragedy as surfer declared dead on the sand and 999 teams swarm - The Mirror
- Cornwall beach tragedy as surfer declared dead on the sand and 999 teams swarm - The Mirror
- Surfer dies on beach in Cornwall - Cornwall Live
- Surfer dies on beach in Cornwall - Cornwall Live
- Surfer dies on beach in Cornwall - Cornwall Live
- Surfer dies on beach in Cornwall - Cornwall Live
- Surfer dies on beach in Cornwall - Cornwall Live
- Launceston's Colts beaten in thrilling final at Hayle - Cornish times
- Cornwall planning: Homeless mum's fight to reunite with ill daughter in 'forever home' - Cornwall Live
Problems within 7km of Hayle | FixMyStreet
Hayle News
- This fantastic free class will be running from Sunday 3rd May over the summer, so please go along and enjoy!
- Photos from Hayle Library's post
- A post from Hayle Town Council
- Please follow this link for the agenda:
- If you have any free events, classes or clubs taking place between 20th-26th April that we haven't mentioned, please feel free t...
- ???????????????????????????? ???????????????????????????????????? - ???????????????????????? ????????????????, ????????????????????????????????????
- Cornwall beach tragedy as surfer declared dead on the sand and 999 teams swarm - The Mirror
- Cornwall beach tragedy as surfer declared dead on the sand and 999 teams swarm - The Mirror
Facebook - Hayle Town Council
- This fantastic free class will be running from Sunday 3rd May over the summer, so please go along and enjoy!
- Photos from Hayle Library's post
- A post from Hayle Town Council
- Please follow this link for the agenda:
- If you have any free events, classes or clubs taking place between 20th-26th April that we haven't mentioned, please feel free t...

















Recent comments
12 weeks 1 day ago
17 weeks 1 day ago
17 weeks 1 day ago
32 weeks 1 day ago
51 weeks 5 days ago
51 weeks 5 days ago
51 weeks 5 days ago
51 weeks 5 days ago
1 year 21 weeks ago
1 year 35 weeks ago