PA21/02600 | Alterations and extension to a dwelling | Ashleen Steamers Hill Angarrack Hayle Cornwall TR27 5JB
Submitted by via Cornwall Co... on Wed, 31/03/2021 - 11:09.
Alterations and extension to a dwelling - Ashleen Steamers Hill Angarrack Hayle Cornwall TR27 5JB
Ref. No: PA21/02600 | Received date: Tue 09 Mar 2021 | Status: Pending Consideration | Case Type: Planning Application
| Reference | PA21/02600 |
|---|---|
| Alternative Reference | n/a |
| Application Validated | Mon 29 Mar 2021 |
| Address | Ashleen Steamers Hill Angarrack Hayle Cornwall TR27 5JB |
| Proposal | Alterations and extension to a dwelling |
| Status | Awaiting decision |
| Appeal Status | Unknown |
| Appeal Decision |
There are 10 documents associated with this application.
There is 1 case associated with this application.
There is 1 property associated with this application.
|
| Date Published | Document Type | Measure | Drawing Number | Description | View |
|---|---|---|---|---|---|---|
| 29 Mar 2021 | Plan - Site Location |
|
01A |
|
||
| 29 Mar 2021 | Plan - Existing Block |
|
02A |
|
||
| 29 Mar 2021 | Plan - Proposed Block |
|
05A |
|
||
| 29 Mar 2021 | Assessment - Flood Risk |
|
|
|||
| 09 Mar 2021 | Application Form |
|
APPLICATION FORM |
|
||
| 09 Mar 2021 | Plan - Existing Floor |
|
1207.03 | GROUND FLOOR AS EXISTING |
|
|
| 09 Mar 2021 | Plan - Existing Elevations |
|
1207.04 | ELEVATIONS - EXISTING |
|
|
| 09 Mar 2021 | Plan - Proposed Floor |
|
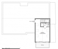
1207.06 | GROUND FLOOR PLAN LAYOUT - PROPOSED |
|
|
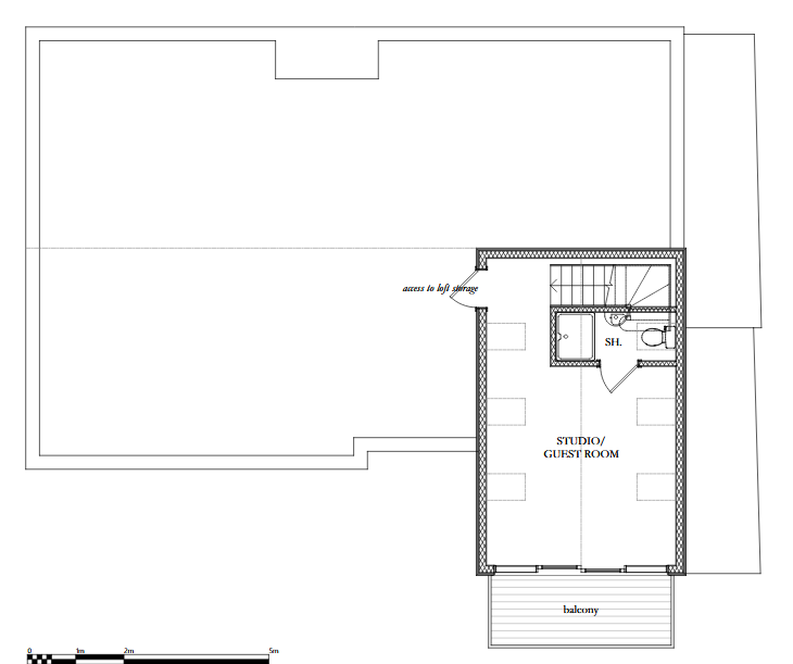
| 09 Mar 2021 | Plan - Proposed Floor |
|
1207.07 | FIRST FLOOR PLAN LAYOUT - PROPOSED |
|
|
| 09 Mar 2021 | Plan - Proposed Elevations |
| 1207.08 | ELEVATIONS - PROPOSED |
|
- Printer-friendly version
- Login or register to post comments
- Permalink
Contributions
- Angarrack Defibrillator Team (25)
- Angarrack Inn (336)
- Angarrack Methodist Chapel (3)
- Carol (15)
- Gail (1)
- GordonG (12)
- Hayle Development Group on Facebook (5)
- Hayle Harbour Authority (4)
- Hayle Town Council (5)
- louise (1)
- Lynne (111)
- Mal (1)
- MattBuckley66 (9)
- Neil (22)
- Neils Garden Care (9)
- Russell (21)
- Secretary - Christmas Lights (141)
- Steve (3)
- webmaster (5122)
Book page
Similar
- Approved with conditions | PA20/09906 | Proposed new build dwelling - 30 Steamers Hill Angarrack TR27 5JB
- PA20/09906 | Proposed new build dwelling - 30 Steamers Hill Angarrack TR27 5JB
- Withdrawn | PA19/01143 | Outline application all matters reserved construction of single storey/dormer style 3/4 bed dwelling
- PA19/01143 | Outline application all matters reserved construction of single storey/dormer style 3/4 bed dwelling - 30 Steamers
- Approved with conditions | PA18/10732 | To extend the existing property and create an annexe for an elderly parent with mobility
Similar across site
- PA21/02600 | Alterations and extension to a dwelling | Ashleen Steamers Hill Angarrack Hayle Cornwall TR27 5JB
- Approved with conditions | PA20/09906 | Proposed new build dwelling - 30 Steamers Hill Angarrack TR27 5JB
- PA20/09906 | Proposed new build dwelling - 30 Steamers Hill Angarrack TR27 5JB
- Withdrawn | PA19/01143 | Outline application all matters reserved construction of single storey/dormer style 3/4 bed dwelling
- PA19/01143 | Outline application all matters reserved construction of single storey/dormer style 3/4 bed dwelling - 30 Steamers
Hayle and Angarrack news | Google
- Cornwall beach tragedy as surfer declared dead on the sand and 999 teams swarm - The Mirror
- Cornwall beach tragedy as surfer declared dead on the sand and 999 teams swarm - The Mirror
- Cornwall beach tragedy as surfer declared dead on the sand and 999 teams swarm - The Mirror
- Cornwall beach tragedy as surfer declared dead on the sand and 999 teams swarm - The Mirror
- Cornwall beach tragedy as surfer declared dead on the sand and 999 teams swarm - The Mirror
- Surfer dies on beach in Cornwall - Cornwall Live
- Surfer dies on beach in Cornwall - Cornwall Live
- Surfer dies on beach in Cornwall - Cornwall Live
- Surfer dies on beach in Cornwall - Cornwall Live
- Surfer dies on beach in Cornwall - Cornwall Live
- Surfer dies on beach in Cornwall - Cornwall Live
- Launceston's Colts beaten in thrilling final at Hayle - Cornish times
Problems within 7km of Hayle | FixMyStreet
Hayle News
- This fantastic free class will be running from Sunday 3rd May over the summer, so please go along and enjoy!
- Photos from Hayle Library's post
- A post from Hayle Town Council
- Please follow this link for the agenda:
- If you have any free events, classes or clubs taking place between 20th-26th April that we haven't mentioned, please feel free t...
- ???????????????????????????? ???????????????????????????????????? - ???????????????????????? ????????????????, ????????????????????????????????????
- Cornwall beach tragedy as surfer declared dead on the sand and 999 teams swarm - The Mirror
- Cornwall beach tragedy as surfer declared dead on the sand and 999 teams swarm - The Mirror
Facebook - Hayle Town Council
- This fantastic free class will be running from Sunday 3rd May over the summer, so please go along and enjoy!
- Photos from Hayle Library's post
- A post from Hayle Town Council
- Please follow this link for the agenda:
- If you have any free events, classes or clubs taking place between 20th-26th April that we haven't mentioned, please feel free t...












Recent comments
12 weeks 2 days ago
17 weeks 2 days ago
17 weeks 2 days ago
32 weeks 2 days ago
51 weeks 6 days ago
51 weeks 6 days ago
51 weeks 6 days ago
51 weeks 6 days ago
1 year 21 weeks ago
1 year 35 weeks ago